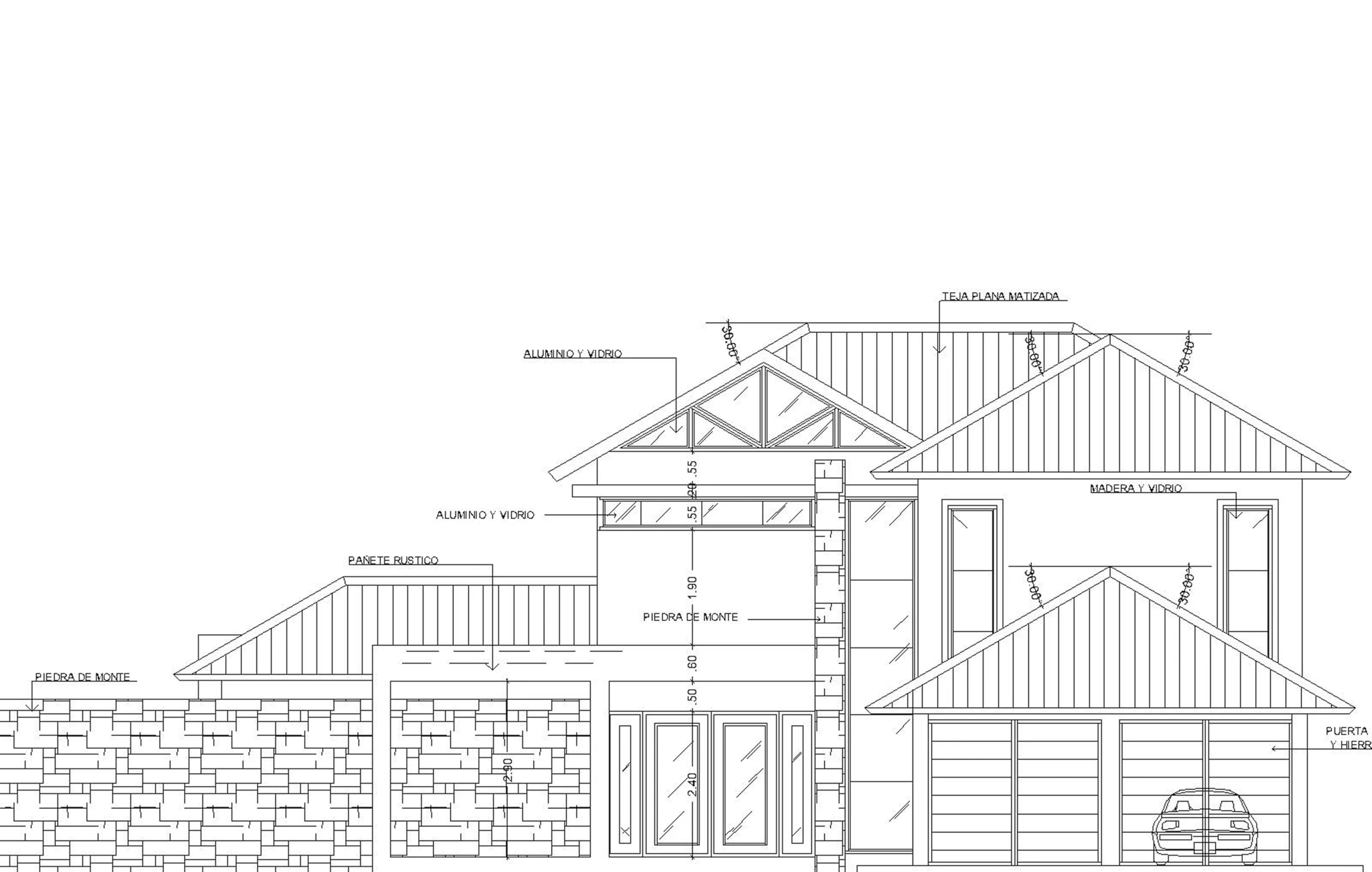
Villa C-38

Situada en Punta Cana, Villa C-38 es una residencia que combina lujo atemporal con amplitud y funcionalidad en cada uno de sus espacios. Su diseño privilegia la comodidad sin sacrificar elegancia, integrando una selección de acabados de alta calidad que realzan la experiencia residencial. Construida con precisión y cuidado en cada fase del proceso, la villa refleja un compromiso con la excelencia y el detalle.